Aldinga Beach 6 Humphrys Road

Enquire Now
< >

For Sale
$740,000 to $780,000

×

Quick Loan Calculator

  • Purchase Price 0
  • Deposit 0
  • Loan Amount 0
  • Monthly Repayment 0
  • Total Repayments 0
We can help you get the best deal from a range of lenders including large banks, key regional banks, credit unions and non-bank lenders. No stress, no fuss.
Save on a loan now
Disclaimer: This calculator does not include any taxes, fees, duties or levies. Before deciding on a loan product, you should seek independent financial advice from an a licensed financial adviser.

Develop, Transform or Invest

2 1 2

Open Times

Share This Property


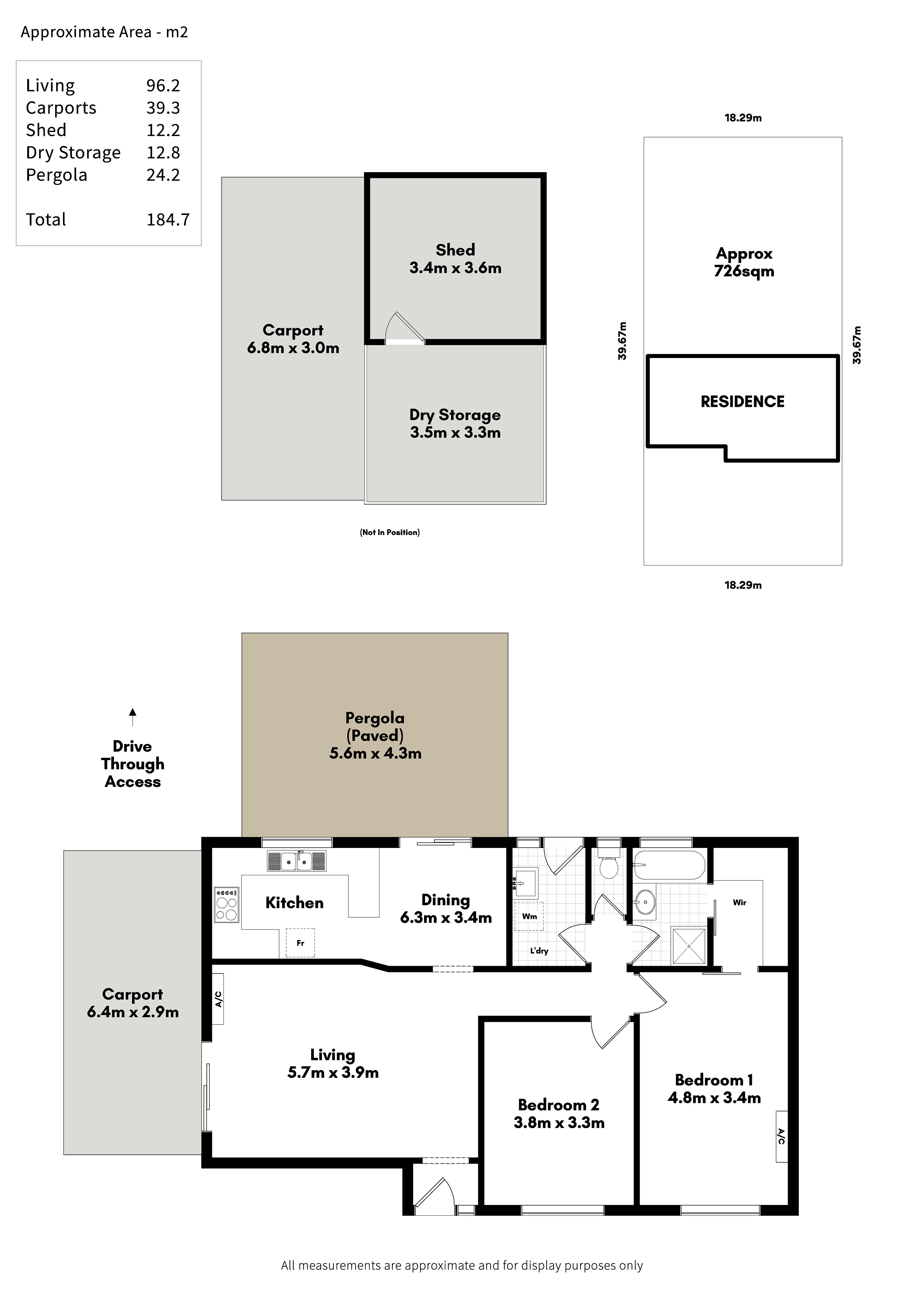
Perfectly positioned just a couple of streets back from the iconic Aldinga Beach Esplanade, this well?presented two?bedroom home delivers an unbeatable combination of coastal lifestyle, space, privacy and future potential. Set on a large 726sqm (approx.) allotment with established trees and gardens, the property offers a sense of seclusion while remaining close to everything that makes this suburb so desirable.

Inside, you'll find a bright and functional layout with a welcoming living room, original kitchen with garden outlook, and an adjoining dining area with sliding door access to the outdoor shade-cloth pergola. The two bedrooms are well?proportioned, with a walk-in robe to the main bedroom. The 2-way bathroom—complete with bath and shower—reflects the home's original charm and the separate toilet adds convenience. Two split system reverse cycle airconditioners, one in the living room and one in the main bedroom, ensures year?round comfort.

Outdoors, a spacious paved pergola creates the perfect setting for entertaining or unwinding in the shade. The backyard offers expansive lawn areas and established greenery, while the drive?through carport leads to valuable shedding at the rear—ideal for storage, hobbies, equipment or trailers. The generous allotment provides plenty of room to enhance, extend or even subdivide.

Adding to the appeal is the convenience of having local shops, schools and sporting facilities all close by, making everyday living easy and lifestyle?focused. Whether you're searching for a smart investment, an affordable entry into the beachside market or a home to personalise over time, this property represents an exceptional opportunity in one of Aldinga Beach's most in?demand pockets.

Property Information

  • Land area approx 726sqm

Property Features

  • Air Conditioning
  • Carports 2
Century 21 SouthCoast SouthCoast
161 Esplanade
Aldinga Beach SA 5173
 
Phone08 8556 6001  
 
Lic NoRLA 273693  


Local Information Aldinga Beach

Education

Nearest Government Schools

  • Aldinga Beach Primary School
  • Aldinga Payinthi College
  • Seaford Rise Primary School
  • Willunga Primary School
  • Moana Primary School
  • Willunga High School

Nearest Private Schools

  • Cardijn College Galilee
  • Willunga Waldorf School
  • Tatachilla Lutheran College
  • All Saints Catholic Primary School
  • Cardijn College

Local Amenities

Parks

  • Symonds Reserve
  • Aldinga Reef Aquatic Reserve
  • Aldinga Scrub Conservation Park
  • Towilla Yerta Reserve

Viticulture

  • Aldinga Bay Winery
  • Donolga Winery

Sport and Recreation

  • Aldinga Bay Bowling Club
  • Aldinga Oval

Services

  • Aldinga Post Office